string(4) "3351"

Котел КВГ 1.2 МВт газовый в Узбекистане

Версия
для печати
В наличии на складе Цена в рублях с НДС 1 015 000
Получите скидку
у менеджера
Цена на котел КВГ 1.2 МВт газовый с доставкой от 1 015 000 рублей с НДС
Вид топкиГазовая горелка
Максимальная тепловая мощность, МВт1.2
ТопливоГаз
Отапливаемая площадь, м²9500-13600
Доставка ТК в Узбекистан и по России
Безналичный расчет
Подобрать котел по мощности
Опросный лист
Эту продукцию можно
купить в лизинг
  • Технические
    характеристики
  • Описание
    товара
  • Комплект
    поставки
  • Дополнительно
    потребуется
  • Сертификаты и
    гарантии
  • Отзывы о
    продукции
  • Видео
    обзор
  • Подбор
    котла

Газовый котел КВГ надежная и эффективная водотрубная конструкция

  • Развитая конвективная поверхность нагрева снижает температуру уходящих газов 180-200°C - КПД 92%
  • Все элементы топочной камеры равномерно охлаждаются теплоносителем
  • Отсутствие трубных досок исключает деформации и разрывы сварных швов
  • Быстрый выход на режим и эксплуатационная гибкость
  • Высокая скорость потока теплоносителя (профилактика накипи) и минимальные требования к химводоподготовке

Технические характеристики котла КВГ 1.2 МВт газового (под отечественную горелку ГГ и ГБЛ)

Тип Котел КВГ
Тип отопительного котла Газовый
Бренд HeatExpert
Марка Котел КВГ 1.2 МВт газовый
Вид топки Газовая горелка
Максимальная тепловая мощность, МВт 1.2
Максимальная тепловая мощность, кВт 1200
Максимальная тепловая мощность, Гкал 1.07
Диапазон регулирования мощности, % 40-100
Топливо Газ
Низшая теплота сгорания проектного топлива, кКал/нм³ 9400
КПД котла на ГАЗЕ, не менее, % 91.2
Расход ГАЗА среднечасовой за отопительный сезон, м³/ч 70
Расход ГАЗА при максимальной нагрузке котла, м³/ч 125
Расход условного топлива, кг/ч 168
Минимальная температура воды на входе в котел, °C 55
Максимальная температура воды на выходе из котла, °C 115
Давление воды, МПа (кгс/см²) 0.3-0.6 (3-6)
Номинальный расход теплоносителя, м³/ч 43
Расход теплоносителя через котел min-max, м³/ч 32-54
Гидравлическое сопротивление при номинальном расходе, МПа (кгс/cм²) не более 0.07 (0.7)
Аэродинамическое сопротивление, Па (мм. вод. ст.) 175 (17.5)
Давление в топке, Па - 20 (- 2)
Объем уходящих газов, м³/ч 2650
Температура уходящих газов, не более, °С 164
Тяга Принудительная
Водяной объем котла, л 750
Объем топочной камеры, м³ 2.64
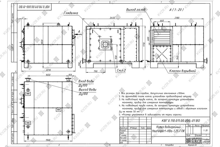
Размер топочной камеры, длина*ширина*высота, мм 1560х1300х1300
Присоединительные размеры по водяному тракту, Ду 100
Присоединительные размеры газохода уходящих газов, ширина*высота / сечение, мм/м² 660х600 / 0.46
Габаритные размеры котла, длина*ширина*высота, мм 2210х2455х1830
Масса, кг 3200
Вид Водогрейный
Конструкция котла водотрубная
Количество контуров Одноконтурный
Размещение Напольный
Тип камеры сгорания Закрытый
Управление Электронное
Принцип работы газового котла Конвекционный
Энергонезависимый Нет
Тип питания Трехфазное
Встроенный циркуляционный насос Нет
Встроенный расширительный бак Нет
Энергоэффективность Высокая
Отапливаемая площадь, м² от 9500 до 13600
Отапливаемый объем, м³ от 28500 до 40800

Водотрубный трехходовой котел КВГ 1.2 МВт на газе

Надежный и эффективный промышленный котел КВГ 1.2 мощностью 1,2 МВт /1200 кВт на природном и сжиженном газе, предназначен для стабильного отопления и горячего водоснабжения и вентиляции производственных, коммерческих и жилищно-коммунальных объектов площадью до 12100 м², температурой теплоносителя на выходе 95 - 115 °С, рабочим давлением 1,2 - 1,2 кгс/см (3,0 - 6,0) МПа.

Водотрубная конструкция с продуманной многоходовой схемой движения газов и теплоносителя обеспечивает высокий КПД, долговечность и простоту в эксплуатации.

Котел совместим с широкой номенклатурой газовых блочных горелок

  • отечественных EMMA, ILKA, РГМГ, ГМГ, ГБЛ, ГБ, ГГ;
  • импортных BALTUR, UNIGAS, ECOSTAR, Oilon, WEISHAUPT, RIELLO, FLAME, LAMBORGINI, БУДЕРУС, VIESSMANN, и прочие.

Газовый котел КВГ 1.2 МВт - оборудование для специалистов, выбирающих надежность и экономичность, а не просто оборудование.

Водотрубный котел КВГ 1.2 МВт — это не эволюция двухходовых жаротрубных моделей, а принципиально иная конструкция, разработанная для устранения их ключевых слабых мест: низкой надежности, высоких эксплуатационных расходов и рисков.

Ключевые инженерные решения и их преимущества:

1. Конструкция трубной системы "труба-коллектор" вместо "труба-трубная решетка".

Конструктивное решение: Отсутствие массивных трубных досок. Все соединения — это трубы, вваренные в коллекторы, которые охлаждаются теплоносителем.

Преимущества:

  • Снижение эксплуатационных рисков: Исключены термические напряжения и деформации, характерные для трубных решеток жаротрубных котлов при циклических нагрузках и переменных режимах работы. Это главная причина их растрескивания и выхода из строя.
  • Продленный ресурс: Равномерное распределение тепловых нагрузок повышает расчетный срок службы теплообменника.
  • Снижение стоимости обслуживания: Отсутствие необходимости в регулярной подтяжке соединений или контроле состояния решетки.

2. Развитый конвективный пучок с противотоком и шахматным расположением труб.

Конструктивное решение: Дымовые газы совершают три хода, поперечно омывая конвективные трубы, расположенные в шахматном порядке. Движение воды организовано по принципу противотока.

Преимущества:

  • Максимальный теплосъем: Турбулизация потока газов, поперечное омывание труб газами и максимальный температурный напор обеспечивают высокую эффективность при компактных габаритах.
  • Экономия топлива: Реализованная схема теплопередачи напрямую снижает расход газа/дизеля на выработку того же количества тепла.

3. Принудительная высокая скорость теплоносителя в малом контуре.

Конструктивное решение: Малый водяной объем и конструкция коллекторов с перегородками обеспечивают высокую скорость воды в трубах.

Преимущества:

  • Снижение затрат на водоподготовку: Высокая скорость потока предотвращает ламинарное течение и интенсивное образование накипи. Котел более толерантен к качеству воды.
  • Повышение операционной эффективности: Быстрый выход на номинальный режим (малая тепловая инерционность) позволяет эффективно работать в модулируемом режиме, подстраиваясь под переменную нагрузку.

4. Фундаментальное преимущество безопасности.

Конструктивное решение: Малый водяной объем исключают накопление значительной энергии.

Преимущества:

  • Снижение категории риска: При разгерметизации давление падает быстрее, чем происходит вскипание теплоносителя. Это исключает риск взрыва котла как единого целого — главной аварии жаротрубных конструкций.

Сравнение водотрубного и жаротрубного котла КВГ:

ПараметрВодотрубный котел КВГ 1.2Типовой жаротрубный котел КВГ 1.2Преимущества
КПДДо 93% (газоплотность, 3 хода)88 - 91%Экономия 3 - 5% на топливе
Ресурс теплообменникаВыше (отсутствие термических напряжений)Ограничен циклическими нагрузкамиМеньше простоев и затрат на замену
Требования к водеНиже (высокая скорость потока)Высокие (риск застоя и накипи)Снижение расходов на химводоподготовку
Риск аварииМинимальный (малый объем/давление)Повышенный (большой объем)Взрывобезопасность

Сфера применения

Промышленный твердотопливный котел КВ Г-1.2 -115 (95) КБ идеально подходит для автономного отопления и ГВС и вентиляции различных объектов:

  • Промышленность: Цеха, склады, ангары, производственные базы, гаражи, административные здания, автосервисы, станции СТО, сушильные камеры.
  • Сельское хозяйство: Теплицы, фермы, птицефабрики, зерносушильные комплексы.
  • Социальная сфера: Больницы, школы, детские сады, санатории, клубы, административные здания, магазины.
  • ЖКХ: Блочно-модульные и стационарные отопительные котельные для отопления жилых кварталов.

Доставка котельного оборудования осуществляется по всей России и СНГ

Мы осуществляем отгрузку котлов КСВГ-1.2 МВт автотранспортом и железнодорожными перевозчиками в любую точку России и стран СНГ. Каждый котел КВГн 1,2 надежно упаковывается и крепится для безопасной транспортировки.

  • Для расчета точной стоимости доставки до вашего города или населенного пункта отправьте нам онлайн-заявку. Наши логисты оперативно подготовят для вас варианты доставки с просчитанной стоимостью и сроками.
  • Вы также можете уточнить любую информацию об условиях покупки котла онлайн, через форму обратной связи.

Как купить котел КВГ-1,2 (1200 кВт)

Чтобы купить промышленный водогрейный котел КВГ-1.2 ГН/ГС и получить комплексное решение для вашей котельной, свяжитесь с нами любым удобным способом:

Позвоните в отдел сбыта:

+ 8-800-1200-17-43

+7 (3852) 29-97-41 (многоканальный)

Напишите в отдел сбыта:

SB@KVZR.RU

Отправьте онлайн-заявку на коммерческое предложение через сайт.

Наши специалисты помогут вам:

  • Подобрать необходимую комплектацию и вспомогательное оборудование (дымосос, насосы, щит управления, золоуловитель).
  • Рассчитать окончательную стоимость котла с учетом доставки до вашего региона.
  • Просчитать индивидуальные доработки под ваши технические условия.

Индивидуальные доработки и производство котлов КВГ-1,2

Котельный завод «РЭП» изготавливает котлы КВГ-1.2 не только по типовым проектам, но и по техническому заданию заказчика.

Мы можем реализовать для вас:

  • Зеркальное исполнение (расположение штуцеров и патрубков с противоположной стороны).
  • Изготовление опускных газоходов.
  • Выполненные фронтальной плиты с амбразурой под вашу горелку.
  • По спец заказу изготовление котла КВГ-1,2 из цельнотянутой бесшовной трубы ГОСТ 8732 (34).
  • И другие изменения под особенности вашей котельной.

Сертификация и маркировка

Вся наша продукция соответствует самым строгим стандартам качества и безопасности.

  • Производство по ГОСТ: Котлы КВГ-1,2 изготавливаются по ТУ в соответствии с требованиями ГОСТ 30735-12001.
  • Полная сертификация: Оборудование имеет все необходимые сертификаты соответствия Техническим регламентам Таможенного союза:
  •          ТР ТС 010/2011 «О безопасности машин и оборудования»
  •          ТР ТС 016/2011 «О безопасности аппаратов, работающих на газообразном топливе»
  •          ТР ТС 032/2013 «О безопасности оборудования, работающего под избыточным давлением»

Расшифровка маркировки КВГ-1,2:

  • К – котел
  • В – водогрейный
  • Г – топливо газ среднего и низкого давления, сжиженный газ
  • 1.2 – теплопроизводительность 1,2 МВт (1200 кВт)

Дополнительные аббревиатуры в маркировке:

  • КВГн-1.2 – котел, работающий на газе низкого давления.
  • КВГс-1.2 – котел, работающий на газе среднего давления.
  • КВГ-1,2-95 – максимальная температура нагрева воды на выходе 95 °C.
  • КВГ-1,2-115 – максимальная температура нагрева воды на выходе 115 °C.
  • КВГ-1200 кВт – производительность, указанная в киловаттах.
  • КСВг-1.2 – котел стальной водогрейный.

Комплект поставки котла КВГ 1.2 МВт газового (под отечественную горелку ГГ и ГБЛ)

Цена водогрейного котла КВГ 1.2 МВт газового (под отечественную горелку ГГ и ГБЛ) в Узбекистане включает в себя котельный блок в изоляции, вентили, затворы, манометры, термометры и предохранительные клапаны. Ниже приведена подробная информация.

Дополнительное вспомогательное оборудование для работы котла КВГ 1.2 МВт газового (под отечественную горелку ГГ и ГБЛ)

Для эффективной и надежной работы котла КВГ 1.2 МВт газового (под отечественную горелку ГГ и ГБЛ) в вашей котельной вам потребуется дополнительное оборудование - автоматика ЩУК, горелка импортного или отечественного производства, насос сетевой и подпиточный, регулятор давления газа (по необходимости), газоходы и переходники для газового тракта, дымовая труба. Мы предлагаем рассмотреть типовые варианты комплектации.

В случае если у вас на объекте уже имеется насосное и горелочное оборудования, мы можем проверить совместимость котла КВГ 1.2 МВт газового (под отечественную горелку ГГ и ГБЛ) нашего производства и вашего оборудования.

Можем изготовить нестандартные узлы для выполнения быстрого монтажа котла - газоходы и узлы обвязки.

Типовую схему монтажа котла вы можете посмотреть во вкладке схемы подключения и монтаж.

  • автоматический розжиг и останов котла;
  • поддержание в заданных пределах температуры теплоносителя на выходе из котла путем позиционного регулирования мощности горелки;
  • плановый останов котла;
  • аварийный останов котла с выдачей аварийной звуковой и световой сигнализации, отображение причины останова на OLED индикаторе и запоминание ее;
  • автоматическая защита, обеспечивающая останов котла и блокировку его пуска при возникновении аварийных ситуаций.
Цена 205 000 рублей с НДС

Производим газоходы по индивидуальному заказу согласно схеме компоновки котельной. Системы газоходов могут включать в себя:

  • шиберы;
  • газоходы различного сечения;
  • переходы;
  • тройники;
  • карманы всасывающие дымососов.

Используется в качестве сетевого насоса в промышленных отопительных котельных

Цена 71 600 рублей с НДС

Используется в качестве сетевого насоса в промышленных отопительных котельных

Цена 52 900 рублей с НДС

Используется в качестве сетевого насоса в промышленных отопительных котельных

Цена 192 700 рублей с НДС

Используется в качестве сетевого насоса в промышленных отопительных котельных

Цена 203 600 рублей с НДС

Дымосос для удаления дымовых газов из котла.

Цена 101 400 рублей с НДС

Схемы подключения и монтаж котла КВГ 1.2 МВт газового (под отечественную горелку ГГ и ГБЛ)

Водогрейный стальной отопительный котел КВГ 1.2 МВт газовый, предназначен для получения горячей воды номинальной температурой на выходе из котла от 95 до 115 °С рабочим давлением до 0,6 (6,0) МПа (кгс/см), используемой в системах централизованного теплоснабжения на нужды отопления, горячего водоснабжения. Устанавливается в производственных, промышленных и отопительных котельных.

Дополнительные услуги

Сертификат и качество котла КВГ 1.2 МВт газового (под отечественную горелку ГГ и ГБЛ)

Водогрейные котлы производства Котельный завод "РЭП" соответствуют строгим стандартам качества и безопасности. Завод производит котлы КВГ-1.2 в соответствии с требованиями ГОСТ 30735-3001 по Техническим Условиям завода.

Котлы имеют сертификаты соответствия Техническим регламентам Таможенного союза:

  • ТР ТС 010/2011 «О безопасности машин и оборудования».
  • ТР ТС 032/2013 - «О безопасности оборудования, работающего под избыточным давлением».
  • ТР ТС 016/2011 «О безопасности аппаратов, работающих на газообразном топливе»

Водогрейный котел КВГ 1.2 МВт газовый имеет гарантийный срок 24 месяца и срок работы при соблюдении правил монтажа и эксплуатации оборудования 10 лет.

Расшифровка маркировки котла КВГ 1.2 МВт газового (под отечественную горелку ГГ и ГБЛ):

  • К – котел
  • В – водогрейный
  • Г - работа на газе
  • 1,2 – теплопроизводительность 1.2 МВт (1200 кВт)
  • HeatExpert - зарегистрированный товарный знак Котельного завода "РЭП"

Дополнительные аббревиатуры в маркировке:

  • котел КВГ 1.2 МВт - котел водогрейный газовый мощностью 1.2 МВт;
  • котел КВ-Г 1.2-95/115- котел водогрейный газовый 1.2 МВт с температурой до 95 /115°С;
  • котел КВГ Г 1.2-95/115 – максимальная температура нагрева воды на выходе 95/115 °C;
  • КВ-Г 1.2 -95 Н - с газом низкого давления;
  • КВ-Г 1.2 -115 Н - с газом низкого давления;
  • КВ 1.2 ГН - котел водогрейный 1.2 МВт на газе с температурой нагрева воды 95-115 °С;
  • КВГ-1.2-115 Г - котел водогрейный газовый с температурой 115 °С.
Сертификат на котлы водогрейные .jpg
Сертификат на водогрейные котлы
Сертификат на водогрейные газовые котлы .jpg
Сертификат на газовые водогрейные котлы
Знак товарный на водогрейные котлы HEATEXPERT .jpg
Товарный знак на водогрейные котлы HEATEXPERT

Отзывы о продукции

Отзыва о товаре пока нет, будьте первыми!

Водогрейные котлы, мощностью от 175 КВт до 4 МВт используются для отопления производственных, административных и жилых зданий. Котельный завод производит и поставляет весь перечень сопутствующего котельного оборудования- насосы, газоходы, автоматику, дымососы, дымовые трубы, циклоны и прочее. Специалисты нашего завода бесплатно подберут сопутствующее оборудование, а в случае необходимости, выполнят проектирование, монтаж и пуско-наладку котельной установки.

Смотреть видеообзор на
Тип здания
Регион
Населенный пункт
Вид топлива
Наружный объем здания (м3)
Отапливаемый подвал

Как подобрать мощность котла для вашего объекта

Подобрать мощность котла по площади важно учитывая не только площадь и объем здания, но и тип зданий и климатические данные региона.

На нашем сайте калькулятор расчета мощности котла учитывает тепло, требуемое на возмещение тепловых потерь через строительные конструкции и потери, вызываемые инфильтрацией (проникновением) наружного воздуха, через их неплотности и периодически открываемые двери.

Наружный строительный объем здания должен определяться умножением площади горизонтального сечения, взятого по внешнему обводу здания на уровне первого этажа на полную высоту здания, измеренную для панельных зданий: от уровня чистого пола (нулевой отметки) до верхней плоскости теплоизоляционного слоя чердачного покрытия, для остальных строений от уровня земли.

Расчетная температура воздуха в отапливаемых зданий принимается в зависимости от типа и назначения здания:

  • Гостиница, общежитие, административное здание, жилые дома + 20 °С;
  • Детские сады, ясли, поликлиники, амбулатории, диспансеры, больницы + 22 °С;
  • Высшие и средние специальные учебные заведения, общеобразовательные школы, школы интернаты, лаборатории, предприятия общественного питания, клубы, дома культуры + 16 °С;
  • Театры, магазины, пожарные депо + 15 °С;
  • Кинотеатры + 14 °С;
  • Гаражи + 10 °С;
  • Бани + 25 °С.

В случае если требуется отопление различных по типу зданий, теплопотребление каждого считается отдельно, полученные значения складываются и подобрать мощность котла нужно в соответствии с общей суммарной мощностью каждого отдельно стоящего задания.

Климатические условия вашего региона принимаются в соответствии с СП 131.13330 Строительная климатология. Данные по всем регионам России занесены в наш калькулятор расчета мощности котла.

Подобрать мощность котла по площади с учетом потребностей объекта в тепле на вентиляцию и горячую воду возможно только с более детальным расчетом. Его вы можете заказать в отделе сбыта котельного завода отправив заявку на электронный адрес sb@kvzr.ru или позвонив по телефонам (38-52) 29-97-41, 29-97-42.

Вопрос-ответ

  • Технические
    характеристики
  • Описание
    товара
  • Комплект
    поставки
  • Дополнительно
    потребуется
  • Сертификаты и
    гарантии
  • Отзывы о
    продукции
  • Видео
    обзор
  • Подбор
    котла
Документы завода
  • Сертификаты завода
  • Членство в СРО
  • Аттестованная технология сварки
  • Патенты на котельное оборудование
  • Товарные знаки
Смотреть все документы
Сертификат на водогрейные котлы на твердом и жидком топливе
Сертификат на водогрейные котлы на газе и жидком топливе
Сертификат на котлы отопительные паровые КП
Сертификат на топки
Сертификат на щиты управления
Сертификат на скиповые подъемники
Сертификат на золоуловители (циклоны)
Сертификат на конвейеры скребковые
Сертификат на дробилки
Сертификат на клапаны предохранительные
Сертификат на бункер-накопитель механизированный
Сертификат на автоматику газовых горелок
Сертификат о происхождении товара форма СТ-1
Членство в СРО
Членство в СРО
Аттестованная технология сварки
Свидетельство аттестованной технологии сварки
Патент на отопительный котел
Патент на водогрейный котел
Патент на топку водогрейного котла
Патент на водогрейный газовый котел
Патент на водогрейный котел
Патент на топочное устройство твердотопливного котла
Патент на водогрейный котел
HEATEXPERT товарный знак
KVZR товарный знак
STEAMEXPERT товарный знак
Другая похожая продукция
Котел КВ ГМ под отечественную горелку
Лизинг
Вид топкиГазовая горелка
Максимальная тепловая мощность, МВт1.1
ТопливоГаз
Отапливаемая площадь, м²8500-12100
990 000 р. Цена с НДС
Котел КВ ГМ под отечественную горелку
Лизинг
Вид топкиГазовая горелка
Максимальная тепловая мощность, МВт1.25
ТопливоГаз
Отапливаемая площадь, м²9500-13600
1 036 000 р. Цена с НДС
Котел КВа HeatExpert
Лизинг
Вид топкиГазовая горелка
Максимальная тепловая мощность, МВт1.25
ТопливоГаз
Отапливаемая площадь, м²10400-13600
740 000 р. Цена с НДС
Дизельный котел отопления
Лизинг
Вид топкиДизельная горелка
Максимальная тепловая мощность, МВт1.25
ТопливоДизель, Жидкое
Отапливаемая площадь, м²10400-13600
740 000 р. Цена с НДС
Котел КВ ГМ под отечественную горелку
Лизинг
Вид топкиМазутная горелка
Максимальная тепловая мощность, МВт1.2
ТопливоМазут, Жидкое
Отапливаемая площадь, м²9500-13600
1 015 000 р. Цена с НДС
Котел под горелку российского производства
Лизинг
Вид топкиДизельная горелка
Максимальная тепловая мощность, МВт1.2
ТопливоДизель, Жидкое
Отапливаемая площадь, м²9500-13600
1 015 000 р. Цена с НДС
Вы просматривали эти товары
Котел КВ ГМ под отечественную горелку
Лизинг
Вид топкиГазовая горелка
Максимальная тепловая мощность, МВт1.2
ТопливоГаз
Отапливаемая площадь, м²9500-13600
1 015 000 р. Цена с НДС
Котел КВ ГМ под отечественную горелку
Лизинг
Вид топкиГазовая горелка
Максимальная тепловая мощность, МВт1.1
ТопливоГаз
Отапливаемая площадь, м²8500-12100
990 000 р. Цена с НДС
Котел под горелку российского производства
Лизинг
Вид топкиМазутная горелка
Максимальная тепловая мощность, МВт1
ТопливоМазут, Жидкое
Отапливаемая площадь, м²7700-11000
938 000 р. Цена с НДС
Котел КВ ГМ под отечественную горелку
Лизинг
Вид топкиМазутная горелка
Максимальная тепловая мощность, МВт1.3
ТопливоМазут, Жидкое
Отапливаемая площадь, м²9900-14200
796 000 р. Цена с НДС
background